Celebrating 25 Years of Loft Conversions & Extensions in South London. Call us today on 020 8673 4114.
Celebrating 25 Years of Loft Conversions & Extensions in South London. Call us today on 020 8673 4114.

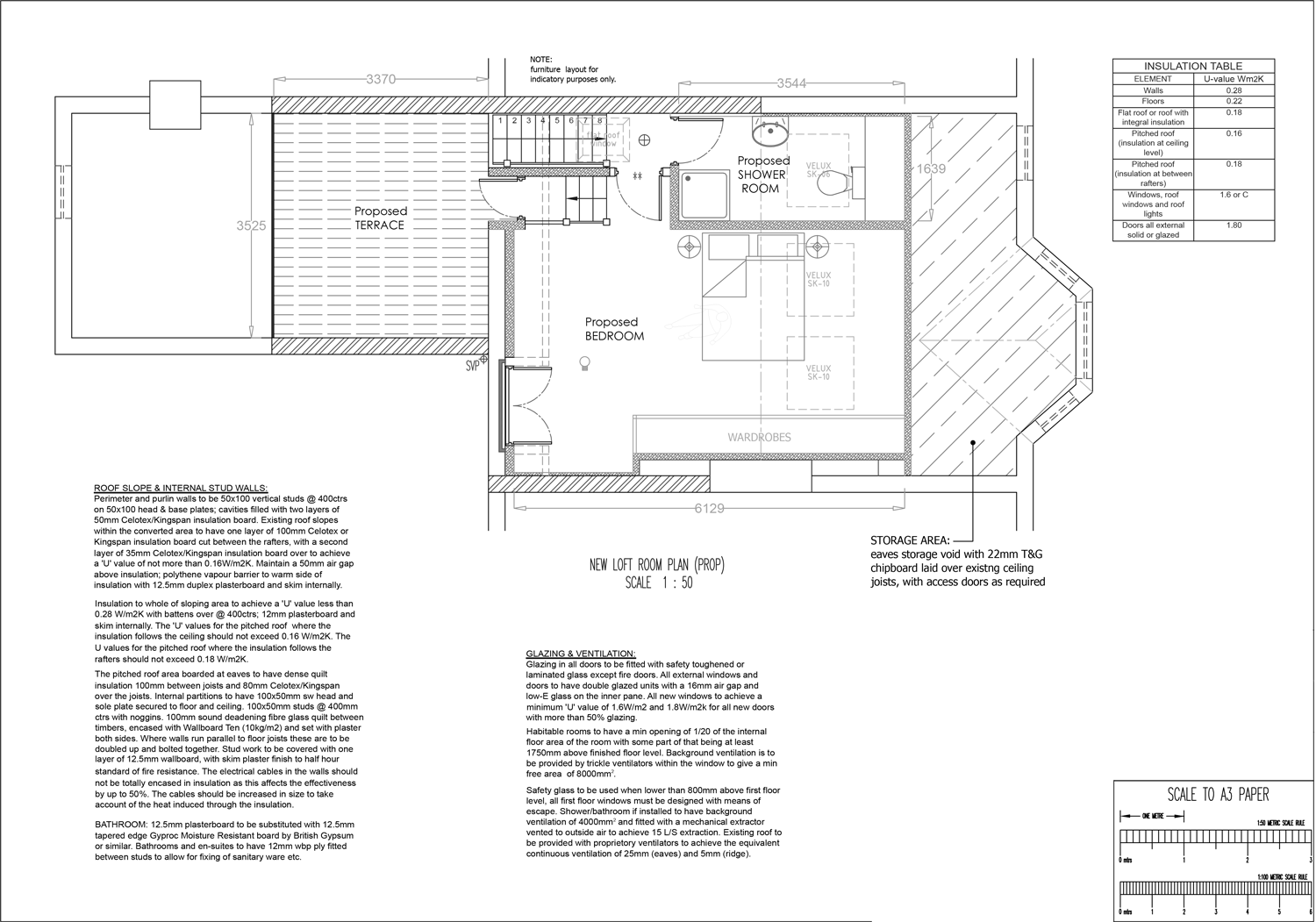
Elmfield Rd Plans

Loft Conversions & Extension Specialists

Call us on 020 8673 4114

Plans2

Some reassuring facts

  • Most lofts are suitable, sometimes even with a low ridge
  • Planning permission isn’t always needed and we can start quickly without a waiting list
  • We will help and guide you with party wall agreements
  • There’s a 10-year guarantee
  • We don’t have lots of separate sub contracted teams
  • We have a centrally run project management system with many years of experience
  • We provide a single dedicated project manager, for the entire project
  • We work fast and the work wil be completed before you know it